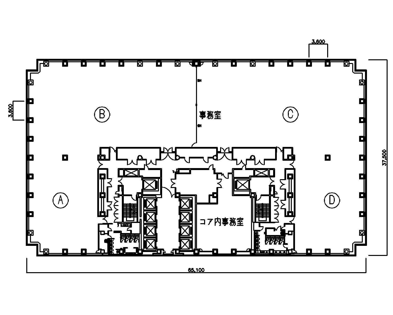
基準階(22~27階)平面図
基準階(22~27階)面積表
フロア一括 | 1.797.91㎡ | 543.9坪 |
|---|---|---|
A | 258.56㎡ | 78.2坪 |
B | 580.96㎡ | 175.7坪 |
C | 572.78㎡ | 173.3坪 |
D | 258.56㎡ | 78.2坪 |
コア | 127.051㎡ | 38.4坪 |
基準階(11~16階)平面図
基準階(11~16階)面積表
フロア一括 | 1.797.91㎡ | 543.9坪 |
|---|---|---|
A | 258.56㎡ | 78.2坪 |
B | 580.96㎡ | 175.7坪 |
C | 572.78㎡ | 173.3坪 |
D | 258.56㎡ | 78.2坪 |
コア | 62.41㎡ | 18.9坪 |